Rénovation d’un T2 et amélioration énergétique majeure
Un T2 optimisé, plus confortable et énergétiquement performant
- Lieu : Varces (38)
- Pour qui : un primo-accédant
- Budget : 80 000 €
- Date : 2025
- Durée : 8 mois
- Mission : étude et conception
Contexte du projet
À Varces, Joan, primo-accédant, a fait l’acquisition d’un T2 de 41 m² présentant un fort potentiel… mais aussi de réelles contraintes.
Classé G, l’appartement se rapprochait d’un état vétuste : inconfort thermique, matériaux dégradés et organisation peu adaptée aux usages du quotidien.
Inoccupé depuis plusieurs années, il constituait une opportunité financière intéressante… mais nécessitait une reprise complète pour révéler son potentiel.
Son objectif était clair : rénover en profondeur pour améliorer le confort, la lisibilité des espaces et la performance énergétique du bien.
Très rapidement, l’analyse du plan a montré qu’un simple réaménagement ne suffirait pas.
C’est une transformation globale qu’il fallait engager, en travaillant à la fois sur les usages et sur l’enveloppe du logement.
Les enjeux
Plusieurs enjeux ont guidé la réflexion :
• Repenser l’organisation pour fluidifier les circulations
• Optimiser chaque mètre carré dans un petit volume
• Améliorer significativement le confort thermique été comme hiver
• Intégrer des rangements sans alourdir l’espace
• Valoriser le bien dans une logique patrimoniale
L’objectif n’était pas seulement de rénover, mais de faire évoluer l’appartement sur tous les plans : usage, confort et performance.
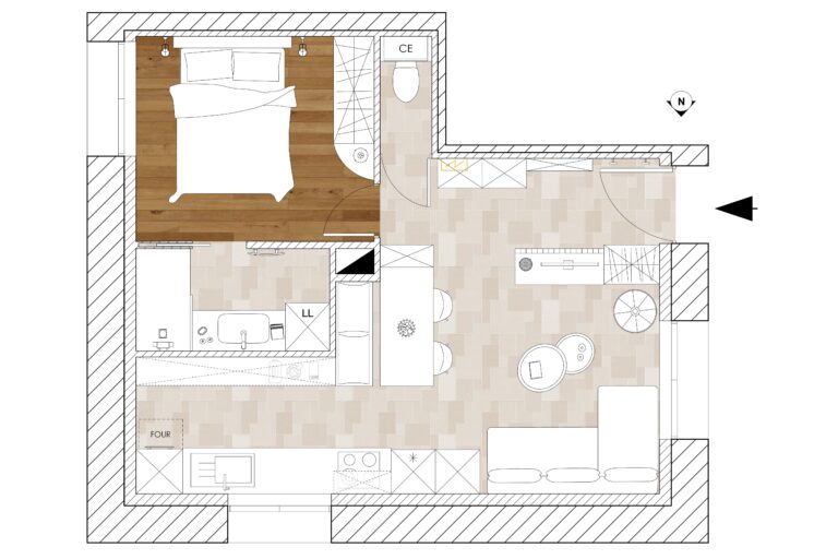
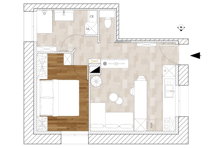
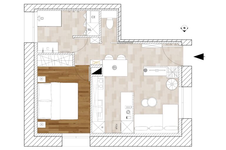
La réponse apportée
La conception s’est articulée autour d’une idée simple : faire travailler chaque espace sans en rajouter.
Après l’étude de plusieurs scénarios, l’implantation retenue permet de structurer clairement les fonctions tout en conservant une sensation d’ouverture.
La pièce de vie s’organise autour d’une cuisine avec îlot multifonction, qui devient à la fois zone de préparation, de repas et de convivialité.
La chambre et la salle de bain ont été repensées pour intégrer des rangements efficaces, dont un placard buanderie discret.
Un travail précis a également été mené sur le mobilier, notamment en ajustant certaines profondeurs pour améliorer la circulation sans compromettre la fonctionnalité.
Chaque choix a été guidé par une recherche de lisibilité, d’équilibre et de confort d’usage.
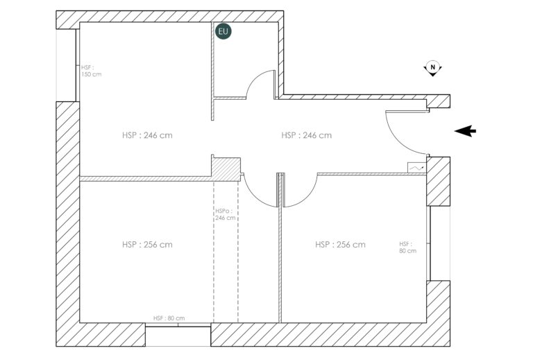
Matériaux et détails
L’identité du projet repose sur un équilibre entre sobriété et caractère :
• Isolation des murs avec 16 cm de laine de bois, pour un confort thermique performant et durable
• Remplacement de l’ensemble des ouvrants en double vitrage
• Chauffe-eau dimensionné en fonction du volume réel du logement
• Ventilateurs de plafond pour améliorer le confort d’été
Côté aménagement, le projet s’inscrit dans une approche sobre et épurée, laissant la priorité à la lisibilité des volumes et à la fluidité des usages.
Les propositions initiales prévoyaient notamment des éléments sur mesure pour exploiter certains espaces, dans une logique d’optimisation et de rythme.
Le résultat
La transformation est nette.
L’appartement passe de classe énergétique G à C, avec un niveau proche du B.
Un gain considérable en termes de confort et de valorisation, obtenu grâce à une approche globale et cohérente.
Chaque espace est aujourd’hui lisible, fonctionnel et agréable à vivre.
L’ensemble fonctionne de manière fluide, sans surcharge, avec une vraie sensation d’équilibre.
Ce projet illustre parfaitement une conviction :
ce n’est pas la surface qui change un logement, mais la manière dont elle est pensée et exploitée.
La réflexion en amont
Le regard du client
Emilie a fait des plan pour mon appartement que j’ai entièrement rénové. Grâce à elle j’ai pu faire un appartement très bien agencé et au goût du jour. Merci à toi ça m’a beaucoup aidé. Je recommande !
Chaque projet est une réponse sur mesure à un mode de vie précis.
Et si on imaginait le vôtre ?
Tout projet commence par une réflexion juste.
Je vous accompagne sur les phases d’étude et de conception, en fonction de vos usages et de vos contraintes.
Un premier échange suffit souvent à tracer les grandes lignes.
🌿 Tout commence par une conversation simple. Je vous écoute.
