Aménagement d’une pièce de vie
Penser l’implantation pour une circulation fluide et des usages partagés
- Lieu : St Nizier du Moucherotte (38)
- Pour qui : un couple avec 3 enfants
- Budget : 35 000 €
- Date : 2023
- Durée : 3 mois
- Mission : étude, conception et suivi de chantier
Contexte du projet
Dans cette maison neuve à ossature bois située dans le Vercors, les propriétaires souhaitaient concevoir une pièce de vie à la fois fonctionnelle, chaleureuse et capable de rassembler.
Un espace ouvert, fluide et facile à vivre au quotidien, mais aussi pensé pour accueillir famille et amis lors de grandes tablées ou de moments plus intimistes.
Le cœur du projet reposait sur une cuisine généreuse avec un îlot central multifonction, un salon confortable pouvant accueillir toute la famille, et une circulation parfaitement orchestrée autour d’un élément central : la cheminée.
Les enjeux
Plusieurs contraintes ont structuré la réflexion dès le départ :
la présence de deux piliers porteurs à intégrer dans l’aménagement,
un conduit de cheminée à positionner avec précision pour desservir harmonieusement les étages supérieurs,
la volonté de conserver un espace ouvert sans perdre en lisibilité ni en confort.
L’enjeu était donc de délimiter les fonctions sans cloisonner, tout en donnant une identité forte à chaque zone de la pièce de vie.
À ces contraintes spatiales s’ajoutait un enjeu fort de confort thermique et de cohérence constructive.
La maison, orientée sud et ouest en raison de la pente du terrain, ne comporte aucun ouvrant au nord afin de limiter les déperditions thermiques, ni à l’est du fait de la topographie.
Ce choix réfléchi s’inscrit dans une démarche de sobriété, de confort et de cohérence, sans viser le passif à tout prix.
La réponse apportée
La solution retenue s’appuie sur une implantation sur mesure, pensée au millimètre près.
La cheminée devient le pivot esthétique et technique du projet, structurant l’espace entre la cuisine et le salon.
Côté cuisine, l’îlot central joue un rôle central dans la vie quotidienne comme lors des grandes tablées. Il accueille trois personnes au quotidien et peut recevoir jusqu’à dix convives lors des repas festifs. Un meuble bas sur mesure, intégré sous l’îlot, permet le rangement des bouteilles et du nécessaire pour les moments de convivialité.
Dans le cellier attenant, un plan de travail amovible vient compléter ponctuellement les surfaces disponibles lors des grandes occasions.
Côté salon, l’implantation s’organise autour d’un grand canapé panoramique, pensé pour accueillir confortablement toute la famille.
La paroi de la cheminée devient un support discret et vivant, accueillant côté cuisine un piano droit, tandis que quelques photos de famille et d’amis viennent ponctuer l’ensemble. Les œuvres, quant à elles, prennent naturellement place sur les murs du salon, affirmant l’identité du lieu sans surcharger l’espace.
Matériaux et détails
Les choix de matériaux ont été guidés par une recherche d’équilibre entre chaleur, durabilité et facilité d’usage, en cohérence avec l’esprit d’une maison bois contemporaine du Vercors.
Côté cuisine, les façades en chêne apportent une présence chaleureuse et naturelle, tandis que le plan de travail en granit assure robustesse et pérennité dans le temps. Le carrelage a été sélectionné avec soin : ni trop clair, ni trop foncé, afin de répondre à des contraintes très concrètes d’entretien, de résistance et de durabilité au quotidien.
La cheminée, élément central du projet, est habillée de panneaux bois sur une base peinte en bleu-gris. Ce traitement permet d’ancrer visuellement l’ouvrage dans l’espace tout en lui donnant une lecture contemporaine et apaisée.
Le résultat
La pièce de vie est devenue un espace chaleureux, fluide et accueillant, capable de s’adapter aussi bien au quotidien de la famille qu’aux grandes tablées.
Un projet où chaque choix d’implantation, de matériau et de détail contribue à créer un lieu vivant, durable et profondément habité.
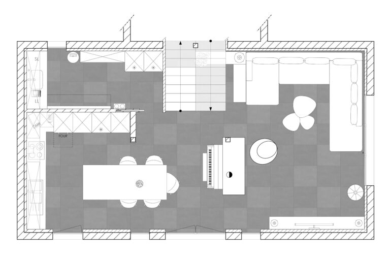
La réflexion en amont
Ces documents illustrent la réflexion menée en amont du projet.
Le plan 2D permet de comprendre l’organisation des espaces, la hiérarchie des usages et les circulations, tandis que les vues 3D donnent à voir les volumes, les proportions et les ambiances envisagées.
Ils ont servi de base d’échange avec les clients pour affiner les choix et valider une implantation en cohérence avec leur mode de vie.
Chaque projet est une réponse sur mesure à un mode de vie précis.
Et si on imaginait le vôtre ?
Tout projet commence par une réflexion juste.
Je vous accompagne sur les phases d’étude et de conception, en fonction de vos usages et de vos contraintes.
Un premier échange suffit souvent à tracer les grandes lignes.
🌿 Tout commence par une conversation simple. Je vous écoute.
