Rénovation et réorganisation complète de la cuisine
Clarifier les usages, améliorer la circulation et rendre l’espace plus lumineux au quotidien
- Lieu : Charleval (13)
- Pour qui : un couple avec un jeune adulte
- Budget : 15 000 €
- Date : 2025
- Durée : 2 mois
- Mission : étude et conception
Contexte du projet
Après 25 ans d’utilisation, cette cuisine avait besoin d’un nouveau souffle. Vieillissante, peu optimisée et dépourvue d’une réelle entrée, elle ne répondait plus aux besoins ni au mode de vie de ses occupants.
Le projet Val a donc été conçu comme une rénovation de cuisine sur mesure, avec l’objectif de transformer cet espace en un lieu chaleureux, pratique et parfaitement adapté au quotidien.
Le projet intègre également une solution astucieuse pour créer un espace d’entrée discret, indispensable pour améliorer l’organisation générale de la maison.
Dans une démarche durable, l’ancienne cuisine, encore en bon état, a été réemployée dans le cabanon extérieur afin de créer une cuisine d’été, prolongeant ainsi son histoire tout en évitant le gaspillage.
Les enjeux
Les enjeux du projet étaient multiples :
• optimiser l’usage de la cuisine au quotidien,
• structurer les volumes et clarifier les circulations,
• créer une vraie transition entre l’entrée et la cuisine,
• rendre la cuisine plus lumineuse et plus lisible, dans un espace auparavant sombre,
• concilier budget maîtrisé et finitions qualitatives.
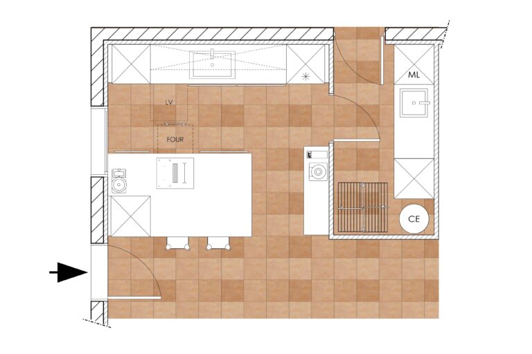
L’ensemble de la réflexion repose sur l’étude fine des usages, des alignements et des circulations.
La réponse apportée
Pour concilier esthétique, fonctionnalité et priorités, plusieurs scénarios d’aménagement ont été étudiés.
La solution retenue a permis de conserver l’îlot central, véritable cœur de vie pour les occupants.
Un placard d’entrée discret a été intégré afin de ranger les blousons, sans compromettre l’agencement général.
Au-dessus de ce placard, une verrière a été installée. Elle fait écho à la véranda attenante au salon, crée une cohérence visuelle et permet à la lumière de circuler librement entre les espaces.
L’agencement a été entièrement repensé afin de privilégier une circulation fluide et un coin repas multifonctionnel, idéal aussi bien pour les repas sur le pouce que pour les moments conviviaux pendant la préparation des repas.
Un meuble mural suspendu a été conçu pour accueillir le petit électroménager. En libérant le sol, il permet également d’intégrer discrètement les gamelles des chats, optimisant chaque centimètre disponible.
Enfin, la buanderie a été agrandie, offrant désormais à la fois des rangements supplémentaires et un espace cellier dédié au stockage des provisions.
Matériaux et détails
Afin de répondre aux attentes des occupants, des structures et façades Ikea, à la fois économiques et durables, ont été choisies.
Les teintes beige clair et bois ont été sélectionnées pour apporter davantage de lumière et adoucir l’ambiance d’une cuisine auparavant sombre.
Le plan de travail en granit, pièce maîtresse du projet, apporte élégance et robustesse.
L’ensemble des matériaux et des teintes a été choisi pour apporter de la clarté et créer une cuisine agréable à vivre au quotidien, sans surcharge ni effet décoratif superflu.
Le résultat
Cette rénovation redéfinit la cuisine comme un espace central, à la fois fonctionnel, lumineux et accueillant.
Grâce à un agencement réfléchi et des choix de matériaux cohérents, elle répond aux besoins spécifiques des occupants tout en s’inscrivant durablement dans leur quotidien.
Un projet pensé pour aujourd’hui… et pour demain.
La réflexion en amont
Le regard du client
Repenser cette cuisine était émotionnellement difficile pour moi.
Avec délicatesse et bienveillance Emilie m’a écoutée accompagnée et guidée à faire les meilleurs choix.
À la fois adaptée à mes envies, le fonctionnement familial de cette cuisine aujourd’hui nous correspond en tout point avec une fonctionnalité que je n’aurai jamais pu penser seule.
Merci 1000 fois pour tout!!!
Chaque projet est une réponse sur mesure à un mode de vie précis.
Et si on imaginait le vôtre ?
Tout projet commence par une réflexion juste.
Je vous accompagne sur les phases d’étude et de conception, en fonction de vos usages et de vos contraintes.
Un premier échange suffit souvent à tracer les grandes lignes.
🌿 Tout commence par une conversation simple. Je vous écoute.
